空き状況等のお問い合わせは、電話03-3952-7251 info@asuto.net までお願いします
所在地:東京都豊島区南長崎6丁目25
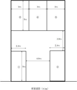
賃 料:①②④号区画 25,000円 ③⑤区画 24,000円
礼 金:なし 敷 金:なし
*提携の家賃保証会社にご加入いただきます。
*アルファードクラスのお車はお停めできません。
*個人契約限定です。
*家賃保証料
(初回賃料の1月分 月々賃料の1%)
*別途仲介手数料、賃料の1月分(税別)が必要です。
” class=”mce_SELRES_start”>



Continue Reading »